匠心 服務 創(chuàng)新 品質

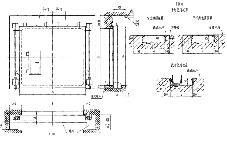
此類門的特點是平時地面無門檻,便于人員和車輛通行;戰(zhàn)時將門扇立轉、降落及平移,以滿足防護、密閉要求,其上帶有方便人員臨時出入的小門,平戰(zhàn)轉換快捷。新型降落門改進了其升降機構,操作更為方便。

| 型號 | 門孔寬B | 門孔高H | 門扇厚δ | B1 | H1 | D |
|---|---|---|---|---|---|---|
| JSFM2525(5) | 2500 | 2500 | 200 | 2700 | 2700 | 360 |
| JSFM3025(5) | 3000 | 2500 | 200 | 3200 | 2700 | 360 |
| JSFM3026(5) | 3000 | 2600 | 200 | 3200 | 2800 | 360 |
| JSFM4025(5) | 4000 | 2500 | 240 | 4200 | 2700 | 400 |
| JSFM4026(5) | 4000 | 2600 | 242 | 4200 | 2800 | 400 |
| JSFM4525(5) | 4500 | 2500 | 240 | 4700 | 2700 | 400 |
| JSFM4526(5) | 4500 | 2600 | 242 | 4700 | 2800 | 450 |
| JSFM5025(5) | 5000 | 2500 | 240 | 5200 | 2700 | 450 |
| JSFM5026(5) | 5000 | 2600 | 240 | 5200 | 2800 | 450 |
| JSFM5027(5) | 5000 | 2700 | 242 | 5200 | 2900 | 400 |
| JSFM6025(5) | 6000 | 2500 | 242 | 6200 | 2700 | 450 |
| JSFM6026(5) | 6000 | 2600 | 242 | 6200 | 2800 | 450 |
| JSFM6027(5) | 6000 | 2700 | 242 | 6200 | 2900 | 450 |
| JSFM6030(5) | 6000 | 3000 | 240 | 6200 | 3200 | 500 |
| JSFM7025(5) | 7000 | 2500 | 240 | 7200 | 2700 | 500 |
| JSFM7026(5) | 7000 | 2600 | 242 | 7200 | 2800 | 700 |