
防護防火密閉門的顯著特點是防火能力強,門扇中有防火填料,除具有普通防護密閉門或密閉門的功能外還能防火、防煙,其防火等級為甲級。

| 型號 |
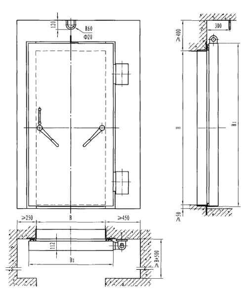
門孔寬B |
門孔高H |
B1 |
H1 |
| FFHM0820(6) |
800 |
2000 |
1000 |
2123 |
| FFHM1020(6) |
1000 |
2000 |
1200 |
2123 |
| FFHM1118(6) |
1100 |
1800 |
1300 |
1923 |
| FFHM1220(6) |
1200 |
2000 |
1400 |
2123 |
| FFHM1320(6) |
1300 |
2000 |
1500 |
2123 |
| FFHM1520(6) |
1500 |
2000 |
1700 |
2123 |